Při brouzdání Revitem jste jistě narazili na analýzu trasy a říkali jste si, k čemu je tato analýza dobrá. Tak přesně pro vás je tento článek, ve kterém si odhalíme, co se pod tímto nástrojem skrývá. Tak jdeme rovnou na to!
Charakteristika analýzy trasy
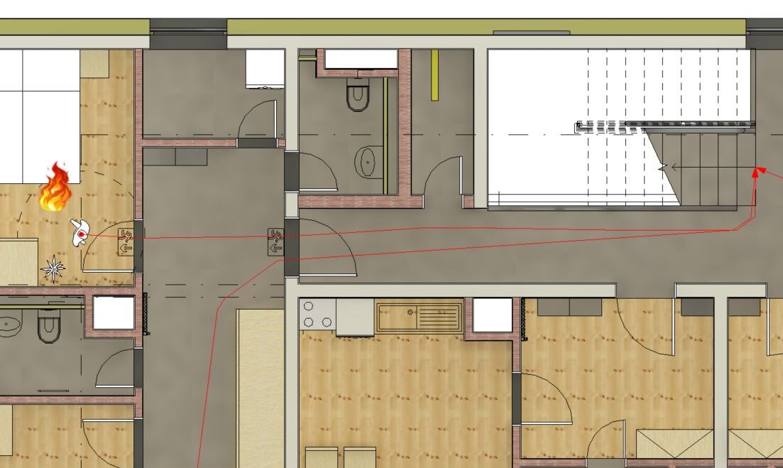
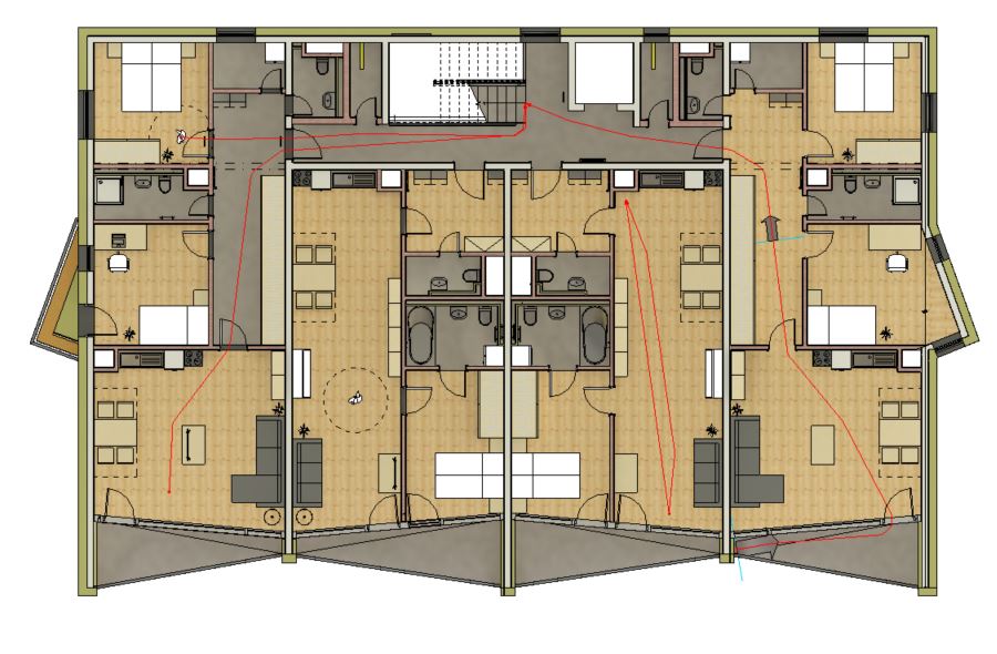
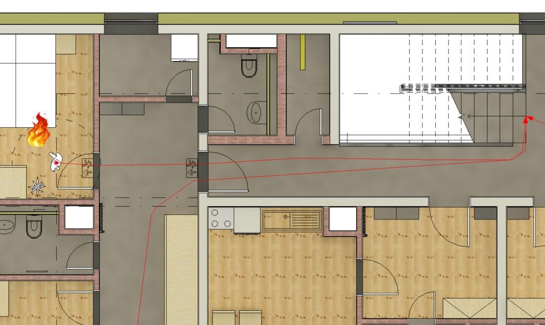
A co vlastně tato analýza zjišťuje? Můžeme se pomocí ní dovědět nejkratší trasu úniku osob před požárem, můžeme pomocí ní zjistit, který únikový východ bude lepší využít, anebo třeba zanalyzovat rozmístění nábytku. Nepřekáží-li v cestě, kterou bude proudit velké množství lidí. Pomocí analýzy zjistíte délku úseku a také čas, který zabere cesta z bodu A do bodu B. Co je podle mě docela nešťastné, je to, že tato analýza nefunguje na rozdílných výškových kótách, tudíž v bytovém domě zanalyzujete maximálně tak jen jedno podlaží. Bude tu stejný problém i během analýzy jednoho podlaží s různými výškovými poměry. Teď už si půjdeme ukázat a vysvětlit veškerou práci a možnosti analýzy.
Nastavení analýzy
Než se pustíme do samotné analýzy, provedeme její nastavení. K němu se dostaneme kliknutím na malou šipku v pravém dolním rohu obrázku 2. Po kliknutí na ni se nám ukáže okno s nastavením. V první části okna nám Revit říká, že jako překážky nebere skryté prvky, demolované prvky a prvky podkladu. Dále řekneme Revitu, co má považovat za překážky a co ne. Defaultně jsou nastaveny dveře jako jediný prvek, který není překážkou. Prvky, které nemají být překážkou se vybírají podle jejich kategorií. V poslední části okna se nás Revit ptá na zónu pro analýzu. Je to oblast, ve které bude hledat překážky pro trasu.
Trasa cesty
Po tom, co dokončíme nastavení, můžeme přejít k samotné analýze. Klikneme na „Trasa cesty“ a vybereme dva body. Trasa bude ve směru od prvního bodu k druhému. Počátek trasy je označen kolečkem, zatímco v druhém bodu si můžeme všimnout šipky.
Pozn.: původní čára trasy cesty je nastavena na zelenou, já jsem ji přepsala ve „viditelnost/zobrazení“ na červenou kvůli viditelnosti na fotkách.
Hotové čáry analýzy trasy můžeme editovat. Po označení čáry trasy cesty můžeme přetáhnutím za počáteční a koncový bod změnit polohu bodů, pomocí kterých jsme trasu zadávali.
Dále můžeme na celou trasu přidat nový bod a tím například trase určit, kudy musí procházet. Tohoto docílíme kliknutím na „Přidat bod na trase“ a jeho následným umístěním na čáru trasy cesty. Tento bod můžeme následně přetáhnout na požadované místo.
Může se nám stát, že se někdo rozhodne stavbu trochu pozměnit anebo přesunout nějaký nábytek. Toto ovšem neznamená, že budeme muset celou analýzu provádět znovu, ale bude nám stačit, když vybereme požadované trasy a klikneme na „Aktualizovat“. Veškeré čáry trasy cesty se pozmění podle nově vzniklých nebo posunutých překážek.
Ukázka překážky
Tato možnost nám oranžově podbarví prvky modelu, které jsou brány jako překážka. Tyto překážky jsme si nastavili v nastavení analýzy. V mém případě je bráno jako překážka vše kromě dveří. Ty i po spuštění této volby zůstávají v původních barvách. Tato možnost slouží pro naši orientaci.
Více tras
V předchozích případech jsme si ukazovali, jak vytvořit jednu čáru trasy. Můžeme jich vytvořit více najednou, tudíž můžeme Revit nechat hledat tu nejvýhodnější trasu. V mém případě ovšem nebylo možné toto využít, jelikož při vyvolání této funkce se nás Revit ptá, jaký mají mít čáry mezi sebou rozestup, ale tento rozestup může mít minimálně 375 mm. Z tohoto důvodu se mi obě čáry neprošly skrz dveře. S většími dveřmi toto rozhodně použitelné je. Po tom, co Revitu sdělíme odstup tras, opět vybereme dva body stejně jako při používání jedné trasy.
Ukazatel směru
Tato možnost nám označuje směr trasy. Rodina má v sobě rovinu, kterou Revit bere jako překážku. Chceme-li vytvořit nějakou trasu v protisměru, čára trasy cesty tuto rovinu obejde. Šířku roviny si můžeme sami zvolit a to přepsáním parametru „One Way Indicator Width“ na požadovanou hodnotu.
Obsah osob
Pomocí této rodiny můžeme určit zaplněnost prostorů. Jedná se o rodinu člověka, kolem kterého je kružnice, která určuje potřebný osobní prostor jednotlivce. Máme na výběr z kružnice o průměru 2 m a 2,4 m, ale nic nám nebrání v tom vytvořit si další rozměry sami. Skrz tuto kružnici, osobní prostor každého člověka, není možno vést čáru trasy cesty. Kružnice osobního prostoru je opět brána jako překážka.
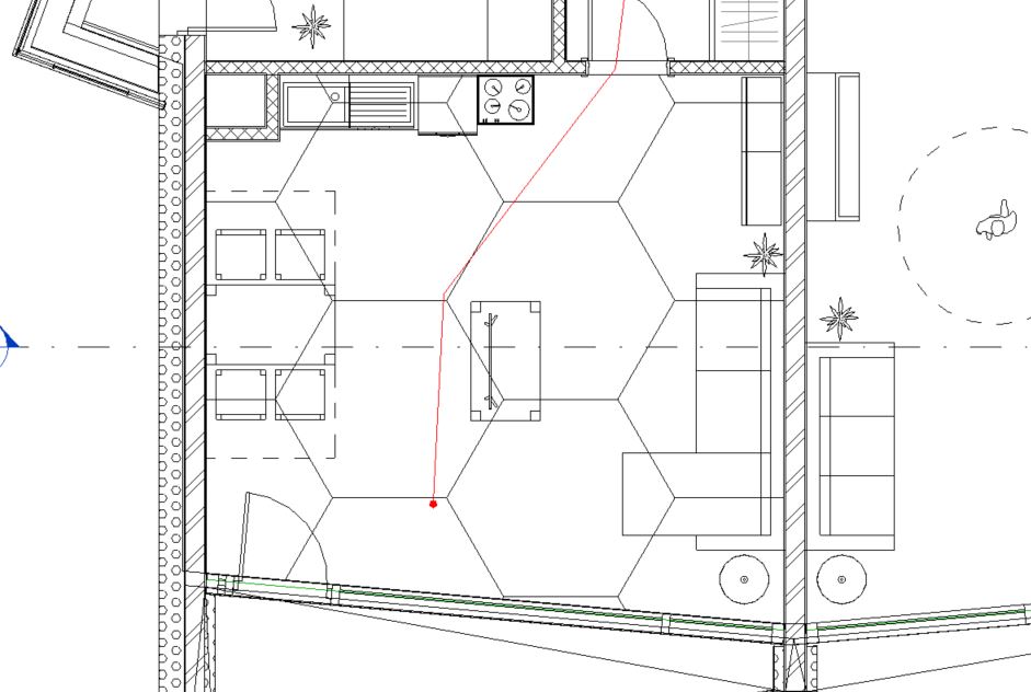
Prostorová osnova
Jedná se o vyplněnou oblast. Buďto můžeme zvolit čtvercový nebo šestiúhelníková vzor. Tato prostorová osnova slouží ke zobrazení požadavků na odstupy ať už mezi jednotlivými lidmi a nebo například mezi vybavením objektu. Tato osnova v sobě nemá žádné překážky, je zde pouze pro orientaci. Rozteče jednotlivých tvarů si můžeme volit.
Výkaz trasy cesty
Ze všech našich analýz tras můžeme vyhotovit i výkazy. Výkaz tvoříme klasicky přes „Nový výkaz/množství“ a vybíráme kategorii „Čáry trasy cesty“. Je schovaná až na konci pod kategorií čar. Do tohoto výkazu si můžeme dát parametry jako např.: Délka, Čas, Z místnosti, Do místnosti.
Závěr
Tímto jsme prozkoumali všechny možnosti analýzy trasy. Dověděli jsme se pomocí ní délky únikových cest, mohli jsme zjistit, že je potřeba přesunout některé stoly v projektované restauraci a také jsme mohli vybrat, která úniková cesta bude k jakému pokoji nejlepší. To, v čem ale vidím podstatné mínus této analýzy je právě nemožnost provádět tato zkoumání napříč různými podlažími nebo výškovými poměry.

















