Kótování potrubí bývá často časově náročné – zvlášť když jde o rozsáhlé projekty a kombinaci hranatého i kruhového potrubí. Abychom vám ušetřili desítky minut až hodiny práce, vytvořili jsme nástroj CCtools – Kótování potrubí, který celý proces výrazně zjednoduší a zpřehlední.

Jak to funguje?
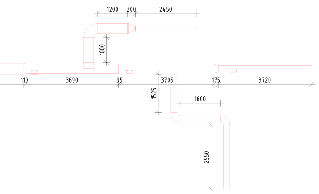
Nástroj pro kótování funguje jednoduše: buď nevyberete žádné potrubí – v tom případě se automaticky okótuje vše, co se nachází v aktivním pohledu, nebo vyberete konkrétní potrubí, které chcete okótovat. Výběr můžete provést ručně, nebo si ho urychlit pomocí tabulátoru, který postupně označí celý související úsek.
Pak už jen na kartě CCtools MEP kliknete v sekci VZT na Kótovat potrubí… a je hotovo!“

Nastavení
Po vyvolání tohoto nástroje máte na výběr, zda chcete použít vnější nebo vnitřní kótu. Dále můžete nastavit odsazení kóty v milimetrech od potrubí na výkrese.
V další části dialogu lze upravit zaokrouhlení délky pro hranaté i kruhové potrubí. Ve spodní části pak můžete doplnit předponu nebo příponu k výsledné hodnotě kóty.

Ve výkazech se potrubí stále zobrazuje ve své skutečné délce – zaokrouhlení platí pouze pro výkresovou dokumentaci.
Závěr
V tomto článku jsme si představili další šikovný nástroj z naší dílny CCtools. Pokud vás nebaví ručně kótovat potrubí, tenhle pomocník vám práci výrazně ulehčí. Vyzkoušejte ho i vy – uvidíte, že kótování může být otázkou pár kliknutí.


